Modelos
- easyar
- 15 de dez. de 2015
- 1 min de leitura
Fizemos os projetos de software e maquete que serão utilizados como modelo para a criação da maquete e do software reais.
MODELO DE SOFTWARE
Foram feitos esboços das telas que o software deverá apresentar, com as devidas informações que deverão ser disponibilizadas em cada uma delas.
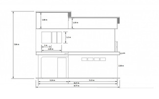
MODELO DE MAQUETE
Escolhemos uma planta na internet e, com alguns ajustes, fizemos um projeto em tecnologia 3D de como será a maquete do Easy A.R.
































Comentários